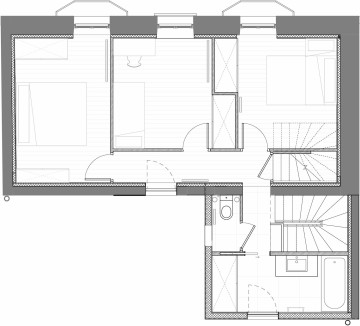
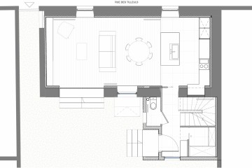
Construction Neuve
Dijon_Tilleul
Lieu
Dijon
Date
2018
Surface
120 m²
Gallerie
Vue existante avant travaux
Vue de l’extension travaux en cours
Axonométrie projetée
Dijon
2018
120 m²