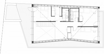
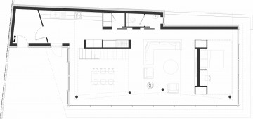
Construction Neuve

Herblay

Lieu

Herblay

Date

2014

Surface

160 m²

En association avec Alexis Teissier Architecte
Sélectionné Prix Archinovo 4e édition – prix de la nouvelle maison d’architecte en France

© Photos :
  • g.dupuy

Gallerie