Ouvrir le menu
Fermer le menu
Loft
Paris_Charonne
Lieu
Paris
Date
2014
Surface
80 m²
Gallerie
1/6
2/6
3/6
4/6
5/6
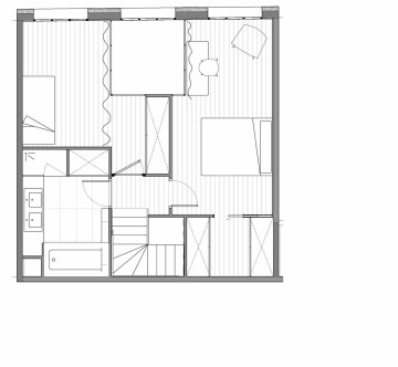
Plan projeté du niveau inférieur
6/6
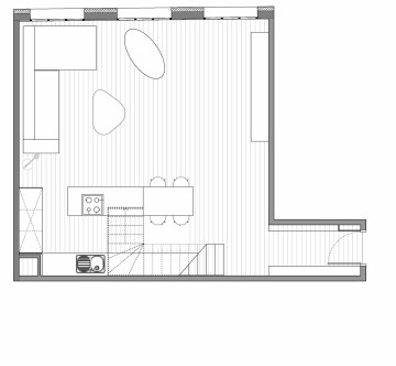
Plan projeté du niveau supérieur