Théâtre

Champignelles

Lieu

Champignelles

Date

2022

Surface

200 m²

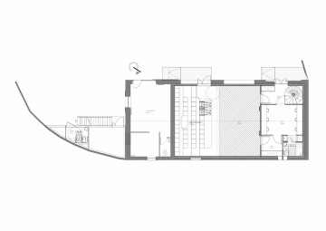
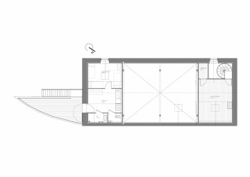
La Compagnie de théâtre Touk Touk via l’Association La Laiterie sont installée dans cette ancienne laiterie depuis 2018. Tout d’abord local administratif, la Compagnie souhaite y proposait des représentations ( salle de spectacle de 50 personnes), un lieu de répétition et un lieu d’hébergement pour les artistes en résidence (1er étage).

Ce projet s’inscrit dans une rénovation à faible impact tant d’un point de vue :

  • écologique : chaudière à granulés bois, isolation performante (acoustique et thermique), réemploi, …
  • architectural : respect du bâti existant (emploi de matériaux traditionnels), nouvelle construction visible avec parcimonie (traitement des ouvertures, extension dans l’enclos existant)

Gallerie